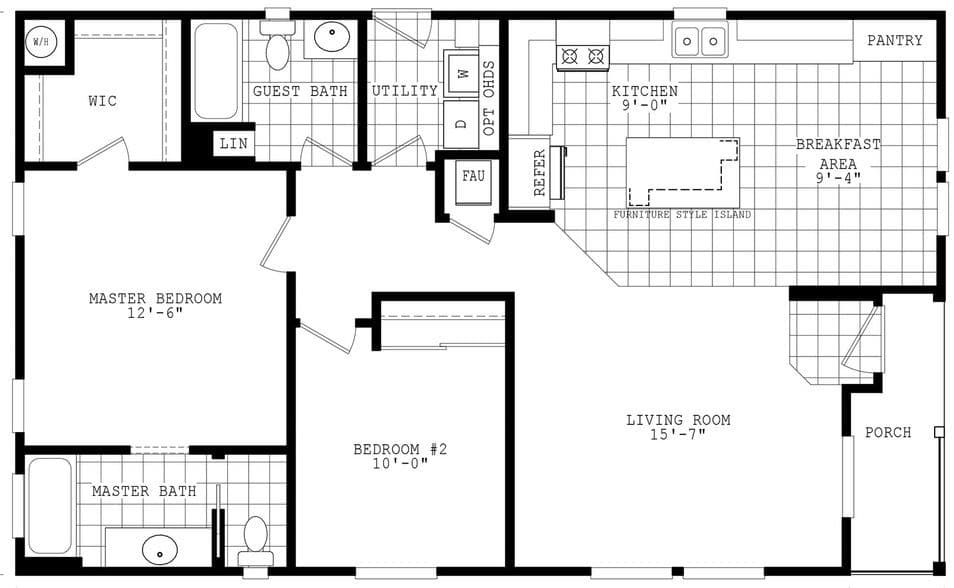
Homes | Durango Porch Homes 28442A