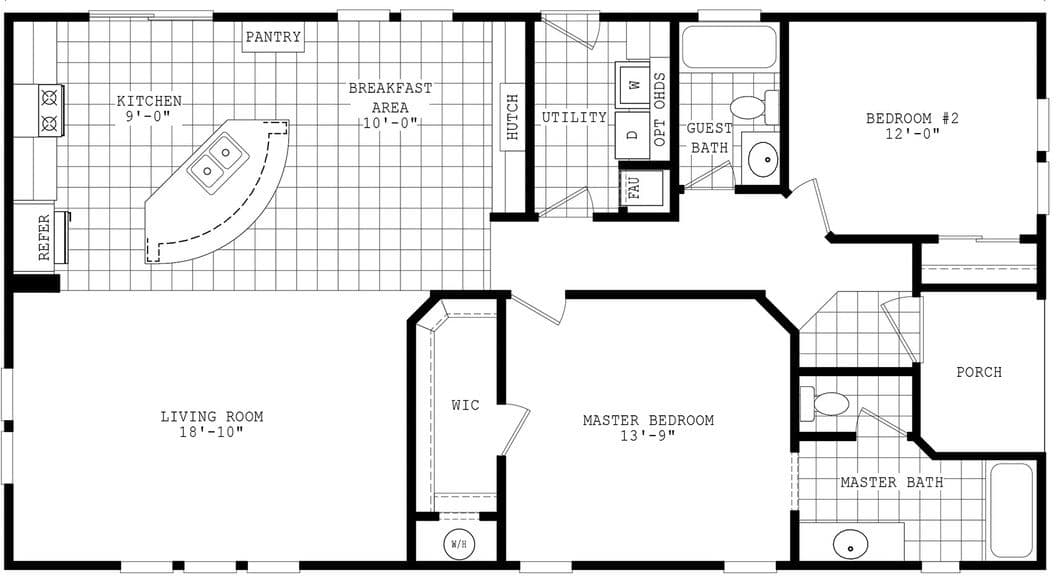
Homes | Durango Porch Homes 28502C