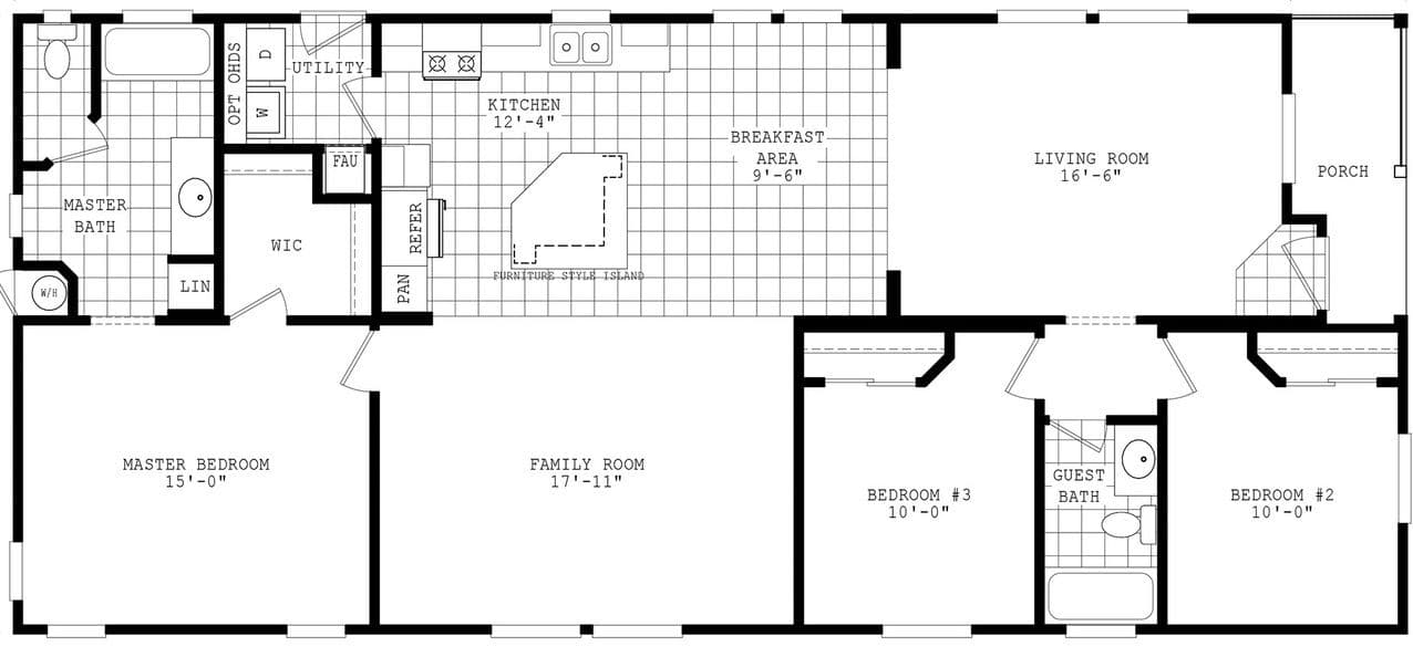
Homes | Durango Porch Homes 28603F