Residential In Swing Front and Rear Doors with Deadbolt
Oversized Vinyl Dual Glazed Windows
2 x 4 Exterior Walls
7'6" Sidewall Height
Nominal 4/12 Roof Pitch with 30 lb. Construction
Climate Zone II Insulation with Floors R-22, Walls R-11, and Roof R-25 Minimum
100 Amp Interior Electrical Service Panel
30 Gallon Electric Water Heater
Shut Off Valves on all Water Fixtures
Downflow Gas Furnace with Floor Ducts Inside Fully Sealed Basement Cavity
Distinctive Elevations
Durable Painted Siding
Fiberglass Shingled Roof
6" Sidewall Roof Eaves and 12" End Wall Overhangs
Porch Lights at All Exterior Doors
Residential In Swing Front and Rear Doors with Deadbolt
Oversized Vinyl Dual Glazed Windows
2 x 4 Exterior Walls
7'6" Sidewall Height
Nominal 4/12 Roof Pitch with 30 lb. Construction
Climate Zone II Insulation with Floors R-22, Walls R-11, and Roof R-25 Minimum
100 Amp Interior Electrical Service Panel
30 Gallon Electric Water Heater
Shut Off Valves on all Water Fixtures
Downflow Gas Furnace with Floor Ducts Inside Fully Sealed Basement Cavity
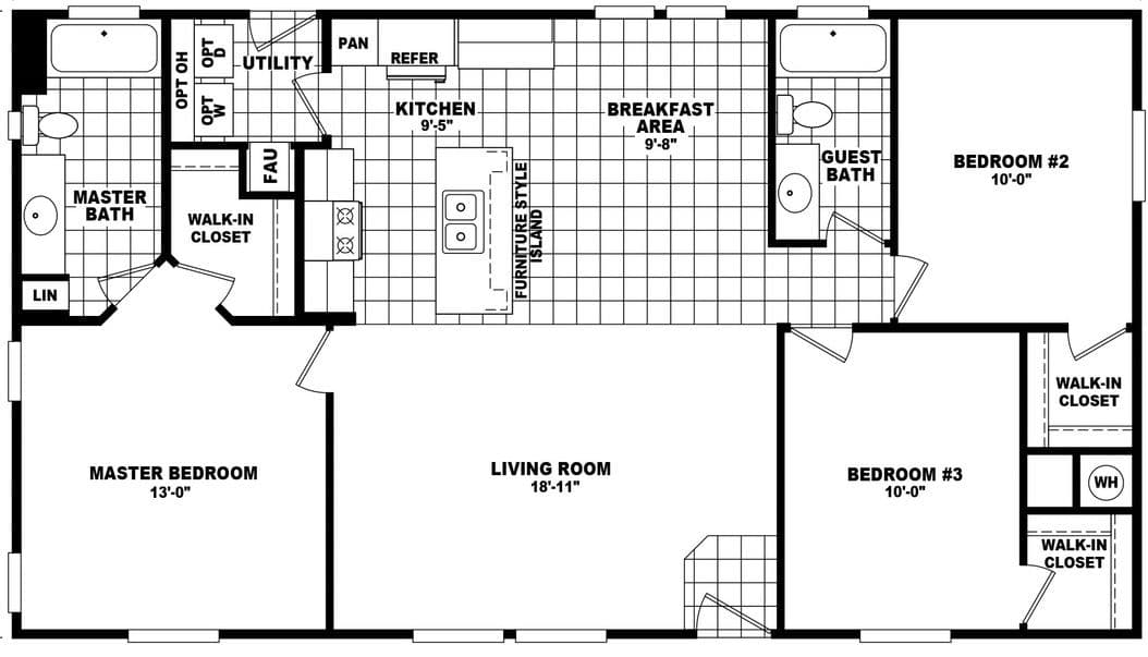
Kitchen
Custom Cabinets with Solid Wood Doors
Nationally Serviced Whirlpool Appliances
30" Free Standing Gas Range
Double Door Frost-Free Refrigerator
Laminate Kitchen Countertops with Ceramic Tile Backsplash
White Composite Gourmet Sink
Wired and Plumbed for Washer & Dryer
Utility Overhead Shelf over Washer & Dryer Area
Single Lever Faucet with Spray
Custom Cabinets with Solid Wood Doors
Nationally Serviced Whirlpool Appliances
30" Free Standing Gas Range
Double Door Frost-Free Refrigerator
Laminate Kitchen Countertops with Ceramic Tile Backsplash
White Composite Gourmet Sink
Wired and Plumbed for Washer & Dryer
Utility Overhead Shelf over Washer & Dryer Area
Single Lever Faucet with Spray
Bathroom
Fiberglass Tub/Shower in Master and Main Bathrooms
Elongated Water-Saver Toilets
Single Lever or Dual Handle Lavatory Faucets
Laminate Vanity Countertops with Ceramic Tile Backsplash
Towel Bars and Tissue Holders
Beveled Edge Vanity Mirrors
Beveled Mirror Recessed Medicine Cabinets
Fiberglass Tub/Shower in Master and Main Bathrooms
Elongated Water-Saver Toilets
Single Lever or Dual Handle Lavatory Faucets
Laminate Vanity Countertops with Ceramic Tile Backsplash
Towel Bars and Tissue Holders
Beveled Edge Vanity Mirrors
Beveled Mirror Recessed Medicine Cabinets
Interior
Cathedral Ceilings Throughout
Tape and Textured Drywall Throughout
White Interior 6 Panel Passage Doors with Painted Jambs and Casings
Hollow Core 6 Panel Wardrobe Doors
Beautiful FHA Approved Carpeting with FHA Approved Pad
Linoleum in Kitchen, Bonus Room, Baths and Entryway (Per Plan)
Silent Wall Switches
Quality Designer Light Fixtures
Wired and Braced for Ceiling Fans in Living Room & Master Bedroom
White Wood Window Cornice With 2" Blinds
Cathedral Ceilings Throughout
Tape and Textured Drywall Throughout
White Interior 6 Panel Passage Doors with Painted Jambs and Casings
Hollow Core 6 Panel Wardrobe Doors
Beautiful FHA Approved Carpeting with FHA Approved Pad
Linoleum in Kitchen, Bonus Room, Baths and Entryway (Per Plan)
Silent Wall Switches
Quality Designer Light Fixtures
Wired and Braced for Ceiling Fans in Living Room & Master Bedroom
White Wood Window Cornice With 2" Blinds
Images of homes are solely for illustrative purposes and should not be relied upon. Images may not accurately represent the actual condition of a home as constructed, and may contain options which are not standard on all homes.