Green Galaxy Prefab logo
Floor Plans
ADUs
Property Map
Building Process
Resources

Building Methods

Past Projects

Blog
  1. Catalog

Mountain Ridge 28603B
3 Bed
2 Bath
1,600 Sq. Ft.
26' 8" x 60'
3 Bed
2 Bath
1,600 Sq. Ft.
26' 8" x 60'

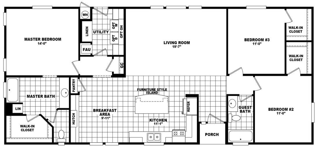
Floor Plan

    Mountain ridge 28603b floor plan home features

    Property map

    Enter your address or APN/TMS to check if this home fits on your property

    Enter your property street address or APN/TMS

    Mountain Ridge 28603B

    $198K - $218K

    3 bedrooms

    2 full bathrooms

    1,600 sq. ft.

    26' 8" x 60'

    Estimated Monthly Payment
    7% APR • 30 years • 20% down
    ~$1.1K - $1.2K/mo
    See brochureDesign home
    Mountain Ridge standard features

    Interior

    • Cathedral Ceilings Throughout
    • Tape and Textured Drywall Throughout
    • White Interior 6 Panel Passage Doors with Painted Jambs and Casings
    • Hollow Core 6 Panel Wardrobe Doors
    • Beautiful FHA Approved Carpeting with FHA Approved Pad
    • Linoleum in Kitchen, Bonus Room, Baths and Entryway (Per Plan)
    • Silent Wall Switches
    • Quality Designer Light Fixtures
    • Wired and Braced for Ceiling Fans in Living Room & Master Bedroom
    • White Wood Window Cornice With 2" Blinds
    • Cathedral Ceilings Throughout
    • Tape and Textured Drywall Throughout
    • White Interior 6 Panel Passage Doors with Painted Jambs and Casings
    Green Galaxy Prefab logo

    Green Galaxy Prefab

    Green Galaxy's prefab home selection

      Pages

      HomesMapSign upSign in

      Help

      Contact usTerms of ServicePrivacy Policy

      Get started with Green Galaxy Prefab

      Find, design, and order your next home in a few clicks.

      Sign up

      Dealer License #: DL1256278

      |
      Powered by BuildTrove.com

      Mountain Ridge 28603B

      $198K - $218K

      3 bedrooms

      2 full bathrooms

      1,600 sq. ft.

      26' 8" x 60'

      Estimated Monthly Payment
      7% APR • 30 years • 20% down
      ~$1.1K - $1.2K/mo
      See brochureDesign home
    • Hollow Core 6 Panel Wardrobe Doors
    • Beautiful FHA Approved Carpeting with FHA Approved Pad
    • Linoleum in Kitchen, Bonus Room, Baths and Entryway (Per Plan)
    • Silent Wall Switches
    • Quality Designer Light Fixtures
    • Wired and Braced for Ceiling Fans in Living Room & Master Bedroom
    • White Wood Window Cornice With 2" Blinds
    • Exterior

      • Distinctive Elevations
      • Durable Painted Siding
      • Fiberglass Shingled Roof
      • 6" Sidewall Roof Eaves and 12" End Wall Overhangs
      • Porch Lights at All Exterior Doors
      • Residential In Swing Front and Rear Doors with Deadbolt
      • Oversized Vinyl Dual Glazed Windows
      • Distinctive Elevations
      • Durable Painted Siding
      • Fiberglass Shingled Roof
      • 6" Sidewall Roof Eaves and 12" End Wall Overhangs
      • Porch Lights at All Exterior Doors
      • Residential In Swing Front and Rear Doors with Deadbolt
      • Oversized Vinyl Dual Glazed Windows

      Kitchen

      • Custom Cabinets with Solid Wood Doors
      • Nationally Serviced Whirlpool Appliances
      • 30" Free Standing Gas Range
      • Double Door Frost-Free Refrigerator
      • Laminate Kitchen Countertops with Ceramic Tile Backsplash
      • White Composite Gourmet Sink
      • Wired and Plumbed for Washer & Dryer
      • Utility Overhead Shelf over Washer & Dryer Area
      • Single Lever Faucet with Spray
      • Custom Cabinets with Solid Wood Doors
      • Nationally Serviced Whirlpool Appliances
      • 30" Free Standing Gas Range
      • Double Door Frost-Free Refrigerator
      • Laminate Kitchen Countertops with Ceramic Tile Backsplash
      • White Composite Gourmet Sink
      • Wired and Plumbed for Washer & Dryer
      • Utility Overhead Shelf over Washer & Dryer Area
      • Single Lever Faucet with Spray

      Bathroom

      • Fiberglass Tub/Shower in Master and Main Bathrooms
      • Elongated Water-Saver Toilets
      • Single Lever or Dual Handle Lavatory Faucets
      • Laminate Vanity Countertops with Ceramic Tile Backsplash
      • Towel Bars and Tissue Holders
      • Beveled Edge Vanity Mirrors
      • Beveled Mirror Recessed Medicine Cabinets
      • Fiberglass Tub/Shower in Master and Main Bathrooms
      • Elongated Water-Saver Toilets
      • Single Lever or Dual Handle Lavatory Faucets
      • Laminate Vanity Countertops with Ceramic Tile Backsplash
      • Towel Bars and Tissue Holders
      • Beveled Edge Vanity Mirrors
      • Beveled Mirror Recessed Medicine Cabinets

      Construction

      • 2 x 4 Exterior Walls
      • 7'6" Sidewall Height
      • Nominal 4/12 Roof Pitch with 30 lb. Construction
      • Climate Zone II Insulation with Floors R-22, Walls R-11, and Roof R-25 Minimum
      • 100 Amp Interior Electrical Service Panel
      • 30 Gallon Electric Water Heater
      • Shut Off Valves on all Water Fixtures
      • Downflow Gas Furnace with Floor Ducts Inside Fully Sealed Basement Cavity
      • 2 x 4 Exterior Walls
      • 7'6" Sidewall Height
      • Nominal 4/12 Roof Pitch with 30 lb. Construction
      • Climate Zone II Insulation with Floors R-22, Walls R-11, and Roof R-25 Minimum
      • 100 Amp Interior Electrical Service Panel
      • 30 Gallon Electric Water Heater
      • Shut Off Valves on all Water Fixtures
      • Downflow Gas Furnace with Floor Ducts Inside Fully Sealed Basement Cavity
    • Mountain Ridge
    • Mountain Ridge 28603B
    • Exterior & Construction

      • Distinctive Elevations
      • Durable Painted Siding
      • Fiberglass Shingled Roof
      • 6" Sidewall Roof Eaves and 12" End Wall Overhangs
      • Porch Lights at All Exterior Doors
      • Residential In Swing Front and Rear Doors with Deadbolt
      • Oversized Vinyl Dual Glazed Windows
      • 2 x 4 Exterior Walls
      • 7'6" Sidewall Height
      • Nominal 4/12 Roof Pitch with 30 lb. Construction
      • Climate Zone II Insulation with Floors R-22, Walls R-11, and Roof R-25 Minimum
      • 100 Amp Interior Electrical Service Panel
      • 30 Gallon Electric Water Heater
      • Shut Off Valves on all Water Fixtures
      • Downflow Gas Furnace with Floor Ducts Inside Fully Sealed Basement Cavity
      • Distinctive Elevations
      • Durable Painted Siding
      • Fiberglass Shingled Roof
      • 6" Sidewall Roof Eaves and 12" End Wall Overhangs
      • Porch Lights at All Exterior Doors
    • Residential In Swing Front and Rear Doors with Deadbolt
    • Oversized Vinyl Dual Glazed Windows
    • 2 x 4 Exterior Walls
    • 7'6" Sidewall Height
    • Nominal 4/12 Roof Pitch with 30 lb. Construction
    • Climate Zone II Insulation with Floors R-22, Walls R-11, and Roof R-25 Minimum
    • 100 Amp Interior Electrical Service Panel
    • 30 Gallon Electric Water Heater
    • Shut Off Valves on all Water Fixtures
    • Downflow Gas Furnace with Floor Ducts Inside Fully Sealed Basement Cavity
    • Mountain ridge  hero and exterior home features

      Kitchen

      • Custom Cabinets with Solid Wood Doors
      • Nationally Serviced Whirlpool Appliances
      • 30" Free Standing Gas Range
      • Double Door Frost-Free Refrigerator
      • Laminate Kitchen Countertops with Ceramic Tile Backsplash
      • White Composite Gourmet Sink
      • Wired and Plumbed for Washer & Dryer
      • Utility Overhead Shelf over Washer & Dryer Area
      • Single Lever Faucet with Spray
      • Custom Cabinets with Solid Wood Doors
      • Nationally Serviced Whirlpool Appliances
      • 30" Free Standing Gas Range
      • Double Door Frost-Free Refrigerator
      • Laminate Kitchen Countertops with Ceramic Tile Backsplash
      • White Composite Gourmet Sink
      • Wired and Plumbed for Washer & Dryer
      • Utility Overhead Shelf over Washer & Dryer Area
      • Single Lever Faucet with Spray
      Mountain ridge  kitchen home features

      Bathroom

      • Fiberglass Tub/Shower in Master and Main Bathrooms
      • Elongated Water-Saver Toilets
      • Single Lever or Dual Handle Lavatory Faucets
      • Laminate Vanity Countertops with Ceramic Tile Backsplash
      • Towel Bars and Tissue Holders
      • Beveled Edge Vanity Mirrors
      • Beveled Mirror Recessed Medicine Cabinets
      • Fiberglass Tub/Shower in Master and Main Bathrooms
      • Elongated Water-Saver Toilets
      • Single Lever or Dual Handle Lavatory Faucets
      • Laminate Vanity Countertops with Ceramic Tile Backsplash
      • Towel Bars and Tissue Holders
      • Beveled Edge Vanity Mirrors
      • Beveled Mirror Recessed Medicine Cabinets
      Mountain ridge  bathroom home features

      Interior

      • Cathedral Ceilings Throughout
      • Tape and Textured Drywall Throughout
      • White Interior 6 Panel Passage Doors with Painted Jambs and Casings
      • Hollow Core 6 Panel Wardrobe Doors
      • Beautiful FHA Approved Carpeting with FHA Approved Pad
      • Linoleum in Kitchen, Bonus Room, Baths and Entryway (Per Plan)
      • Silent Wall Switches
      • Quality Designer Light Fixtures
      • Wired and Braced for Ceiling Fans in Living Room & Master Bedroom
      • White Wood Window Cornice With 2" Blinds
      • Cathedral Ceilings Throughout
      • Tape and Textured Drywall Throughout
      • White Interior 6 Panel Passage Doors with Painted Jambs and Casings
      • Hollow Core 6 Panel Wardrobe Doors
      • Beautiful FHA Approved Carpeting with FHA Approved Pad
      • Linoleum in Kitchen, Bonus Room, Baths and Entryway (Per Plan)
      • Silent Wall Switches
      • Quality Designer Light Fixtures
      • Wired and Braced for Ceiling Fans in Living Room & Master Bedroom
      • White Wood Window Cornice With 2" Blinds
      Mountain ridge  interior home features

      Mountain ridge  bedroom home features



      Images of homes are solely for illustrative purposes and should not be relied upon. Images may not accurately represent the actual condition of a home as constructed, and may contain options which are not standard on all homes.

      View similar homes

      Mountain ridge 28603a floor plan home features

      Mountain ridge 28603a floor plan home features

      Mountain Ridge 28603A

      $198K - $218K

      3 Bed | 2 Bath | 1,600 Sq. Ft. | 26' 8" x 60'

      View detailsDesign home
      Mountain ridge 28603c floor plan home features

      Mountain ridge 28603c floor plan home features

      Mountain Ridge 28603C

      Desert ridge 28583a floor plan home features

      Desert ridge 28583a floor plan home features

      Desert Ridge 28583A

      Mountain ridge 32523a floor plan home features

      Mountain ridge 32523a floor plan home features

      Mountain Ridge 32523A

      $199K - $220K

      3 Bed | 2 Bath | 1,600 Sq. Ft. | 26' 8" x 60'

      View detailsDesign home

      $199K - $220K

      3 Bed | 2 Bath | 1,553 Sq. Ft. | 26' 8" x 58'

      View detailsDesign home

      $204K - $226K

      3 Bed | 2 Bath | 1,625 Sq. Ft. | 31' 3" x 52'

      View detailsDesign home