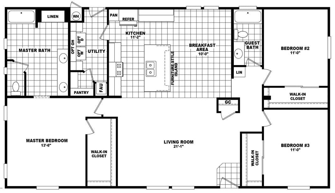
Homes | Mountain Ridge 32563B