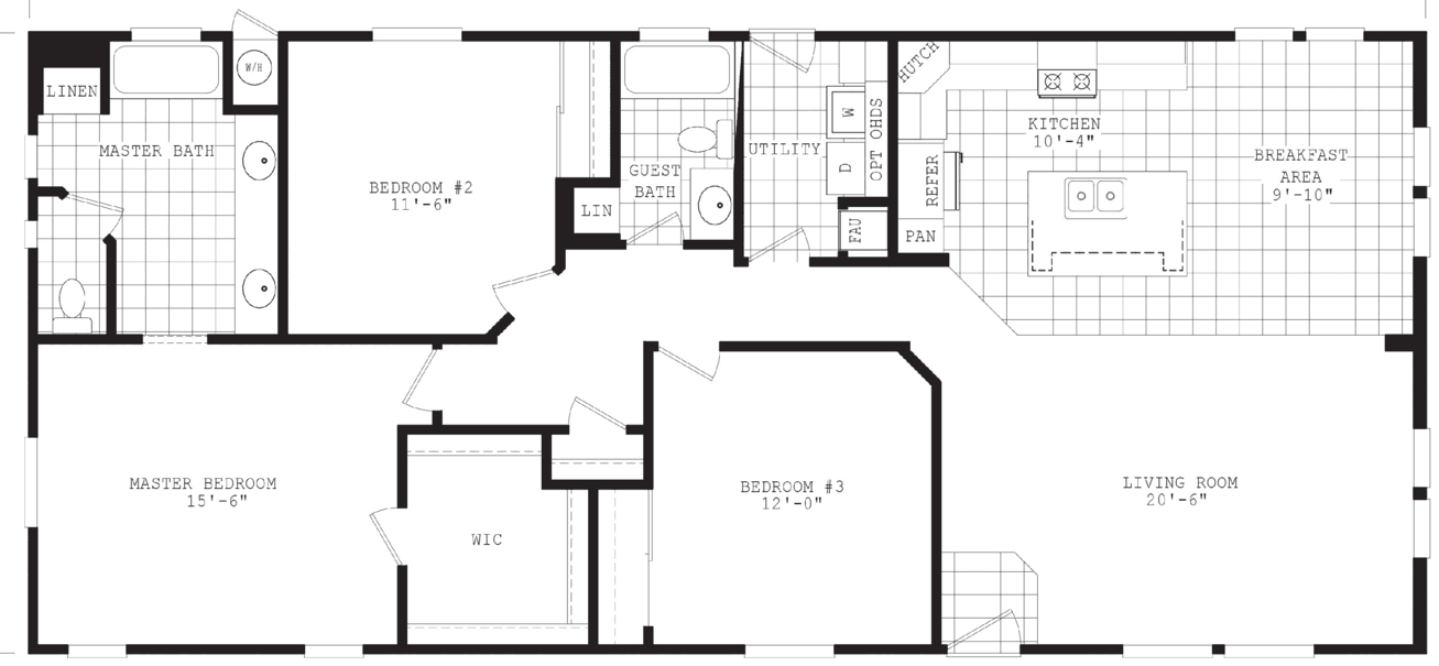
Homes | Sierra Value 28603A