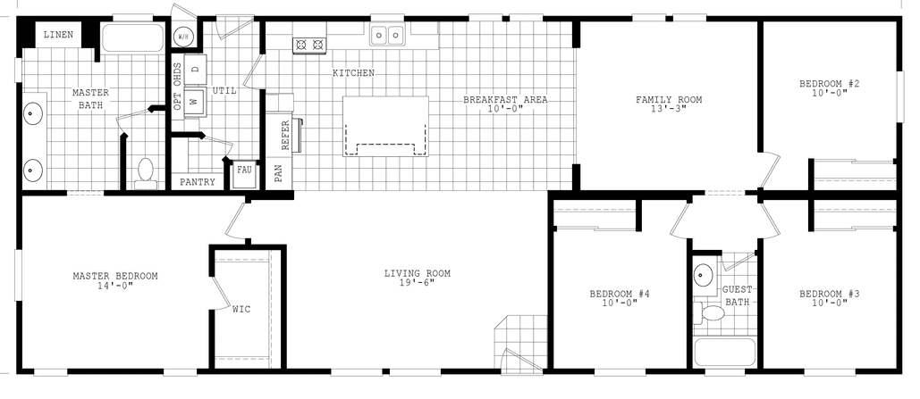
Homes | Sierra Value 28664A