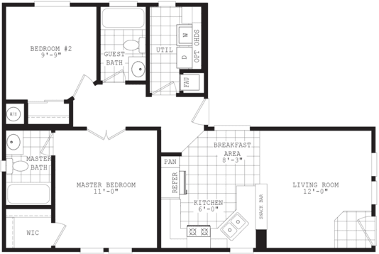
Homes | Wide Homes 20442A