Homes | Grand Mesa
Property map Enter your address or APN to check if this home fits on your property
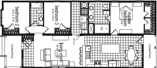
3 bedrooms
2 full bathrooms
1,435 sq. ft.
26' 8" x 60'
Genesis standard features
Interior
Real Wood Cabinets 43” Tall Shaker Cabinets Throughout 3/4" Adjustable Top Shelves Soft Close Hinges Shaker Crown Molding Drawer Over Door Cabinet Construction Wilsonart Thinscape Bank of Drawers in Primary Bath Tall Refer Cabinet Overhead Utility Cabinets w/Shelf & Rod
Real Wood Cabinets 43” Tall Shaker Cabinets Throughout 3/4" Adjustable Top Shelves Soft Close Hinges Shaker Crown Molding
Drawer Over Door Cabinet Construction Green Galaxy Prefab
Green Galaxy's prefab home selection
Get started with Green Galaxy Prefab
Find, design, and order your next home in a few clicks.
Sign up Dealer License #: DL1256278
|
3 bedrooms
2 full bathrooms
1,435 sq. ft.
26' 8" x 60'
Wilsonart Thinscape
Bank of Drawers in Primary Bath
Tall Refer Cabinet
Overhead Utility Cabinets w/Shelf & Rod Bathroom
Gooseneck Kitchen Faucet with Sprayer Double Cell Stainless Steel Sink Dual Lever Bathroom Faucets Bathroom China Sink w/Overflow Pop-Up Drain Polished Edge Vanity Mirrors(Counter Length) 1PC Fiberglass Tub Shower Combo Elongated Toilets
Gooseneck Kitchen Faucet with Sprayer Double Cell Stainless Steel Sink Dual Lever Bathroom Faucets Bathroom China Sink w/Overflow Pop-Up Drain
Polished Edge Vanity Mirrors(Counter Length) 1PC Fiberglass Tub Shower Combo Elongated Toilets Construction
Build to Meet MH Advantage Labels 4/12 Roof Pitch 8' Flat Ceiling 30lb Roof Load Class "A" 30-Year Dimensional Shingles 12” Sidewall Eaves 12” Front & Rear Overhang 2x6 Exterior Walls with R-19 Insulation Formaldehyde Free Insulation Floors & Walls 5/8” OSB Tongue & Groove Floor Decking Foundation Ready Moister Barrier Wrap Fiber-Cement Siding 4" TruWood Window Trim 4" TruWood Door Trim 10” Truwood Fascia (Painted) 36" Inswing Front Door 32" Rear Fire Door 58” Tall Low E, Vinyl Dual Pane Windows SGD Per Floor Plan
Build to Meet MH Advantage Labels 4/12 Roof Pitch 8' Flat Ceiling 30lb Roof Load Class "A" 30-Year Dimensional Shingles 12” Sidewall Eaves 12” Front & Rear Overhang 2x6 Exterior Walls with R-19 Insulation Formaldehyde Free Insulation Floors & Walls 5/8” OSB Tongue & Groove Floor Decking
Foundation Ready Moister Barrier Wrap Fiber-Cement Siding 4" TruWood Window Trim 4" TruWood Door Trim 10” Truwood Fascia (Painted) 36" Inswing Front Door 32" Rear Fire Door 58” Tall Low E, Vinyl Dual Pane Windows SGD Per Floor Plan Interior
25 oz. Carpet ½” 6 lb. FHA Hypo-Allergenic Carpet Pad Vinyl Floors in Wet Rooms Modern Square Corners on Drywall Flat Profile Baseboards Flat Profile Door Trim Flat Profile Window Trim Flat Profile Wood-Cased Windows Faux Wood Blinds Cambridge Passage Doors Round Knobs at Passage doors Wood Shelving / Rods (Closets)
25 oz. Carpet ½” 6 lb. FHA Hypo-Allergenic Carpet Pad Vinyl Floors in Wet Rooms Modern Square Corners on Drywall Flat Profile Baseboards Flat Profile Door Trim
Flat Profile Window Trim Flat Profile Wood-Cased Windows Faux Wood Blinds Cambridge Passage Doors Round Knobs at Passage doors Wood Shelving / Rods (Closets) Mechanical
100 Amp Service Plumb in Icemaker in Wall Wire Electric Dryer Plumb for Washer Shut-Off Valves Throughout High Efficiency Engineered Duct System, Perimeter Registers, Even Temperature Control Quiet Air Delivery, 100% Sealed System, Toe-Kick Registers 95% Efficient Nordyne Gas Furnace H/E 40 Gallon Gas Water Heater (12) 6" LED Ceiling Lights USB Recept in Kitchen (1) Patio Plug Rocker Light Switches Carriage Porch Lights
100 Amp Service Plumb in Icemaker in Wall Wire Electric Dryer Plumb for Washer Shut-Off Valves Throughout High Efficiency Engineered Duct System, Perimeter Registers, Even Temperature Control Quiet Air Delivery, 100% Sealed System, Toe-Kick
Registers 95% Efficient Nordyne Gas Furnace H/E 40 Gallon Gas Water Heater (12) 6" LED Ceiling Lights USB Recept in Kitchen (1) Patio Plug Rocker Light Switches Carriage Porch Lights
Build to Meet MH Advantage Labels 4/12 Roof Pitch 8' Flat Ceiling 30lb Roof Load Class "A" 30-Year Dimensional Shingles 12” Sidewall Eaves 12” Front & Rear Overhang 2x6 Exterior Walls with R-19 Insulation Formaldehyde Free Insulation Floors & Walls 5/8” OSB Tongue & Groove Floor Decking Foundation Ready Moister Barrier Wrap Fiber-Cement Siding 4" TruWood Window Trim 4" TruWood Door Trim 10” Truwood Fascia (Painted) 36" Inswing Front Door 32" Rear Fire Door 58” Tall Low E, Vinyl Dual Pane Windows SGD Per Floor Plan
Class "A" 30-Year Dimensional Shingles
12” Sidewall Eaves
12” Front & Rear Overhang
2x6 Exterior Walls with R-19 Insulation
Formaldehyde Free Insulation Floors & Walls
5/8” OSB Tongue & Groove Floor Decking
Foundation Ready Moister Barrier Wrap Fiber-Cement Siding 4" TruWood Window Trim 4" TruWood Door Trim 10” Truwood Fascia (Painted) 36" Inswing Front Door 32" Rear Fire Door 58” Tall Low E, Vinyl Dual Pane Windows SGD Per Floor Plan Gooseneck Kitchen Faucet with Sprayer Double Cell Stainless Steel Sink Dual Lever Bathroom Faucets Bathroom China Sink w/Overflow Pop-Up Drain Polished Edge Vanity Mirrors(Counter Length) 1PC Fiberglass Tub Shower Combo Elongated Toilets
Gooseneck Kitchen Faucet with Sprayer Double Cell Stainless Steel Sink Dual Lever Bathroom Faucets Bathroom China Sink w/Overflow Pop-Up Drain
Polished Edge Vanity Mirrors(Counter Length) 1PC Fiberglass Tub Shower Combo Elongated Toilets
Real Wood Cabinets 43” Tall Shaker Cabinets Throughout 3/4" Adjustable Top Shelves Soft Close Hinges Shaker Crown Molding Drawer Over Door Cabinet Construction Wilsonart Thinscape Bank of Drawers in Primary Bath Tall Refer Cabinet Overhead Utility Cabinets w/Shelf & Rod 25 oz. Carpet ½” 6 lb. FHA Hypo-Allergenic Carpet Pad Vinyl Floors in Wet Rooms Modern Square Corners on Drywall Flat Profile Baseboards Flat Profile Door Trim Flat Profile Window Trim Flat Profile Wood-Cased Windows Faux Wood Blinds Cambridge Passage Doors Round Knobs at Passage doors Wood Shelving / Rods (Closets)
Real Wood Cabinets 43” Tall Shaker Cabinets Throughout 3/4" Adjustable Top Shelves Soft Close Hinges Shaker Crown Molding Drawer Over Door Cabinet Construction Wilsonart Thinscape Bank of Drawers in Primary Bath Tall Refer Cabinet Overhead Utility Cabinets w/Shelf & Rod 25 oz. Carpet
½” 6 lb. FHA Hypo-Allergenic Carpet Pad Vinyl Floors in Wet Rooms Modern Square Corners on Drywall Flat Profile Baseboards Flat Profile Door Trim Flat Profile Window Trim Flat Profile Wood-Cased Windows Faux Wood Blinds Cambridge Passage Doors Round Knobs at Passage doors Wood Shelving / Rods (Closets)
Images of homes are solely for illustrative purposes and should not be relied upon. Images may not accurately represent the actual condition of a home as constructed, and may contain options which are not standard on all homes.
3 Bed | 2 Bath | 1,416 Sq. Ft. | 26' 8" x 55'
Sequoia 3 Bed | 2 Bath | 1,459 Sq. Ft. | 26' 8" x 56'
Caribou 3 Bed | 2 Bath | 1,357 Sq. Ft. | 23' 8" x 60'
Helena 3 Bed | 2 Bath | 1,527 Sq. Ft. | 26' 8" x 68'