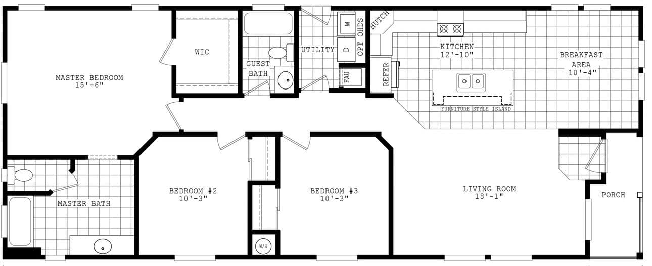
Homes | Durango Porch Homes 24603A