Residential In swing front and rear doors with Deadbolt
Oversized Windows
2 x 4 Exterior Walls on 16" Centers
90" Sidewall Height
2 x 6 Floor Joists on 16" Centers
2x Interior Walls on 16" Centers
Elevated Nominal 4/12 Roof Pitch with 30 lb. Construction
Solid Steel I-Beam Frame Construction
Easy Access Undercarriage Drain System
Climate Zone II Insulation with Floors R-22, Walls R-11, and Roof R-25 Minimum
Ventilaire III Air Exchange System
100 Amp Electrical Service (Per National Electric Code) with Copper Wiring
30 Gallon Electric Water Heater
Easy Access Interior Electrical Panel Box with Separate Appliance Circuits and Breaker Protection on All Circuits
Shut Off Valves on all Water Fixtures
Forced Air Gas Furnace with Ducts Inside Fully Sealed Basement Cavity
Distinctive Residential Elevation
Durable Painted Siding
Fiberglass Shingled Roof
6" Sidewall Roof Eaves and 12" End wall Overhangs
Porch Lights at All Exterior Doors
Residential In swing front and rear doors with Deadbolt
Oversized Windows
2 x 4 Exterior Walls on 16" Centers
90" Sidewall Height
2 x 6 Floor Joists on 16" Centers
2x Interior Walls on 16" Centers
Elevated Nominal 4/12 Roof Pitch with 30 lb. Construction
Solid Steel I-Beam Frame Construction
Easy Access Undercarriage Drain System
Climate Zone II Insulation with Floors R-22, Walls R-11, and Roof R-25 Minimum
Ventilaire III Air Exchange System
100 Amp Electrical Service (Per National Electric Code) with Copper Wiring
30 Gallon Electric Water Heater
Easy Access Interior Electrical Panel Box with Separate Appliance Circuits and Breaker Protection on All Circuits
Shut Off Valves on all Water Fixtures
Forced Air Gas Furnace with Ducts Inside Fully Sealed Basement Cavity
Kitchen
Custom Cabinets with Solid Wood Doors, Maple Finished Overhead Cabinet Interiors, and Drawers Over Doors in kitchen Base Cabinets
Nationally Serviced Whirlpool Appliances
30" Free Standing Gas Range
Double Door Frost-Free Refrigerator
High Pressure Laminate Kitchen Countertops with Ceramic Tile Backsplash
White Composite Gourmet Sink
Wired and Plumbed for Washer & Dryer
Utility Overhead Shelf over Washer & Dryer Area
Single Lever Faucet with Spray
Custom Cabinets with Solid Wood Doors, Maple Finished Overhead Cabinet Interiors, and Drawers Over Doors in kitchen Base Cabinets
Nationally Serviced Whirlpool Appliances
30" Free Standing Gas Range
Double Door Frost-Free Refrigerator
High Pressure Laminate Kitchen Countertops with Ceramic Tile Backsplash
White Composite Gourmet Sink
Wired and Plumbed for Washer & Dryer
Utility Overhead Shelf over Washer & Dryer Area
Single Lever Faucet with Spray
Bathroom
Elongated Water-Saver Toilets
Fiberglass Tub/Shower in Master Bathroom and Guest Bathroom
Single lever or dual handle lavatory faucets
High-Pressure Laminate Vanity Tops with Ceramic Tile Backsplash
Beveled Edge Vanity Mirrors with Light Bars
Privacy Door Locks and Exhaust Fans
Beveled Mirror Recessed Medicine Cabinets
Elongated Water-Saver Toilets
Fiberglass Tub/Shower in Master Bathroom and Guest Bathroom
Single lever or dual handle lavatory faucets
High-Pressure Laminate Vanity Tops with Ceramic Tile Backsplash
Beveled Edge Vanity Mirrors with Light Bars
Privacy Door Locks and Exhaust Fans
Beveled Mirror Recessed Medicine Cabinets
Interior
Dramatic Cathedral Ceilings Throughout
Tape and Textured Drywall Throughout
White Interior 6 Panel Passage Doors with Painted Jambs and Casings
Beautiful FHA Approved Carpeting with FHA Approved Pad
Linoleum in Kitchen, Bonus Room, Baths and Entryway (Per Plan)
Silent Wall Switches
Upgraded Passage Door Hardware & Heavy Duty Hinges
Quality Designer Light Fixtures
Wired and Braced for Ceiling Fans in Living Room & Master Bedroom
White wood window cornices with 2” blinds
Hollow Core 6 Panel Wardrobe Doors
Dramatic Cathedral Ceilings Throughout
Tape and Textured Drywall Throughout
White Interior 6 Panel Passage Doors with Painted Jambs and Casings
Beautiful FHA Approved Carpeting with FHA Approved Pad
Linoleum in Kitchen, Bonus Room, Baths and Entryway (Per Plan)
Silent Wall Switches
Upgraded Passage Door Hardware & Heavy Duty Hinges
Quality Designer Light Fixtures
Wired and Braced for Ceiling Fans in Living Room & Master Bedroom
White wood window cornices with 2” blinds
Hollow Core 6 Panel Wardrobe Doors
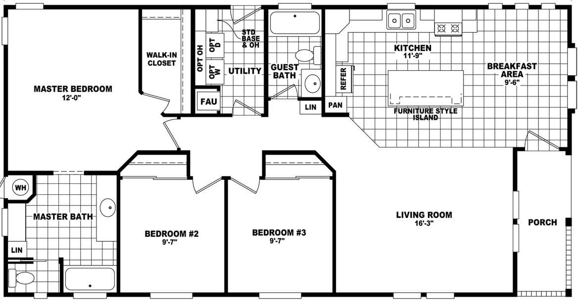
Images of homes are solely for illustrative purposes and should not be relied upon. Images may not accurately represent the actual condition of a home as constructed, and may contain options which are not standard on all homes.