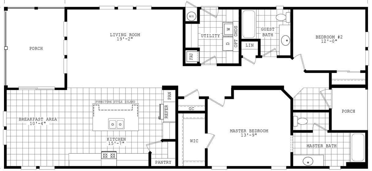
Homes | Durango Porch Homes 28602A