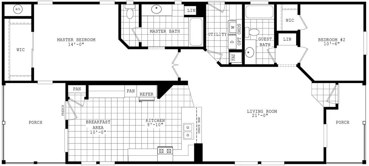
Homes | Durango Porch Homes 28602B