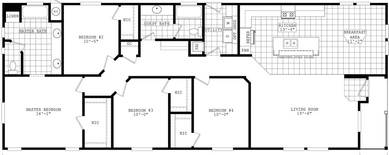
Homes | Durango Porch Homes 28704A