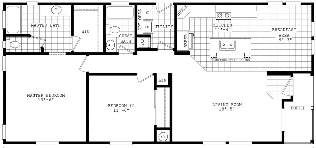
Homes | Durango Porch Homes 24522A