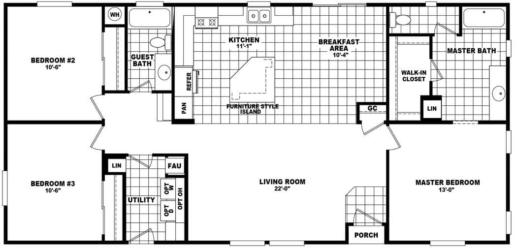
Homes | Mountain Ridge 28563C