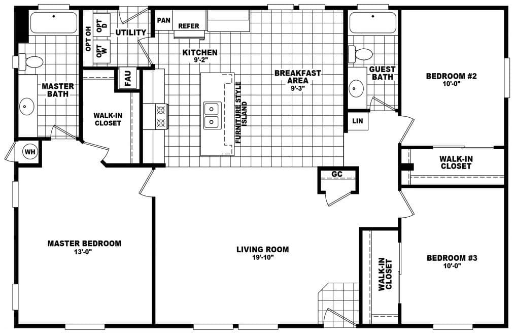
Homes | Mountain Ridge 32483A