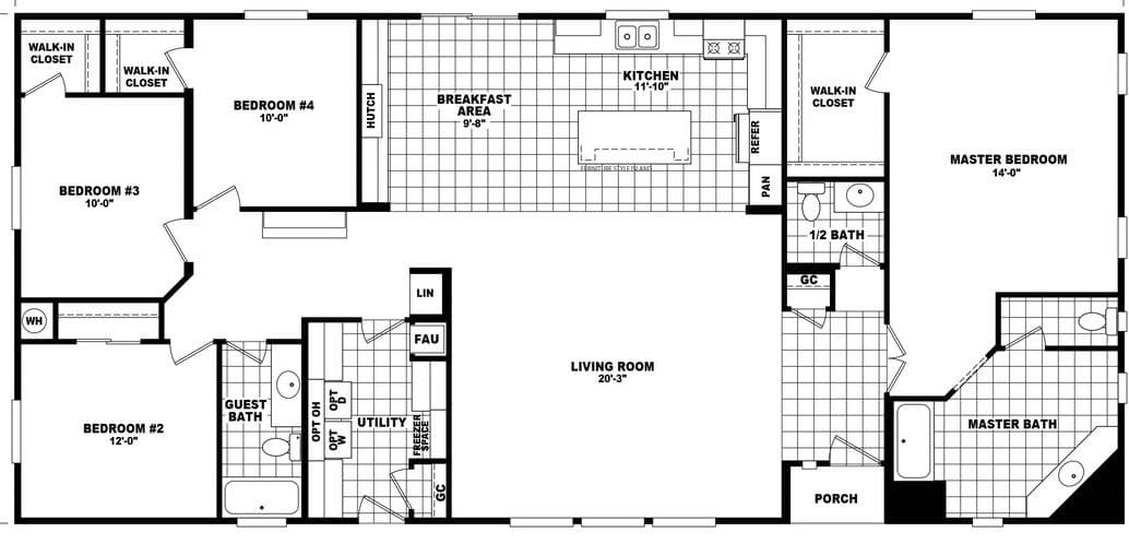
Homes | Mountain Ridge 32684A