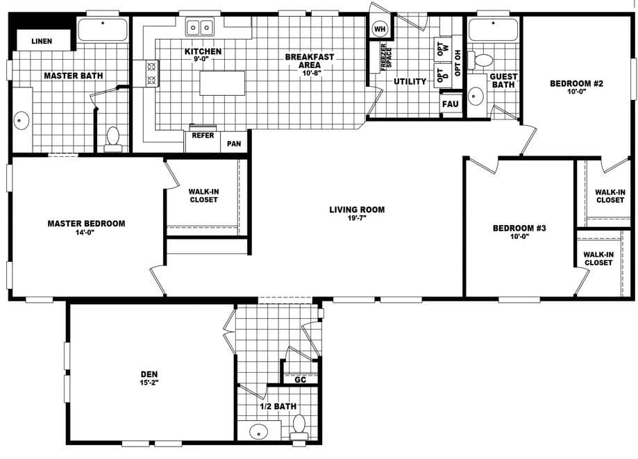
Homes | Mountain Ridge 40583A