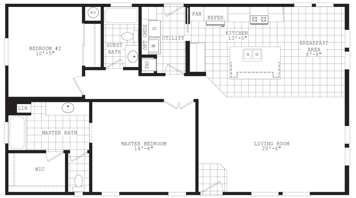
Homes | Sierra Value 28482A