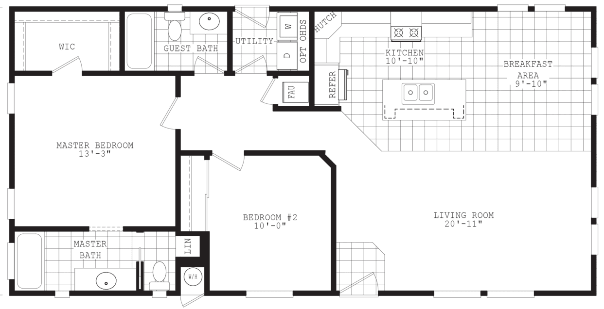
Homes | Sierra Value 24482A