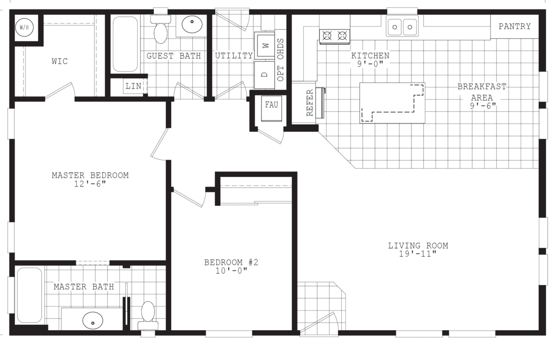
Homes | Sierra Value 28442A